banner banner

新闻资讯News and information

划分防烟分区应遵循什么原则?
Wed Jul 17 16:40:44 CST 2019
作者:合景消防
浏览:4830
       火灾一般分为初起、发展、猛烈燃烧、熄灭这四个阶段,其中进入到发展阶段之后就会伴随有大量的烟气,这些烟气会在建筑物内不断的流动、扩散和传播,部分受灾人员没有自救意识和行为的时候,就会误吸大量的烟气导致出现伤亡。由此可见在建筑物内控制烟气合理流动是很有必要的,但要如何才能控制烟气合理流动呢?其实方法很简单,那就是在建筑物内划分防烟分区。


防烟分区划分原则


       什么是防烟分区?防烟分区是指在设置排烟措施的过道、房间中,用隔墙或其他措施分隔的区域。划分防烟分区是有原则的,具体是如何划分的呢?下面合景消防给大家讲解一下防烟分区划分原则。

       防烟分区划分原则有哪些

       1、通常按每层楼作为一个垂直防烟区(与防火分区划分相同)。

       2、每层楼防烟区按照每个水平防火分区划分数个防烟区,防烟区的划分不能跨越防火分区。

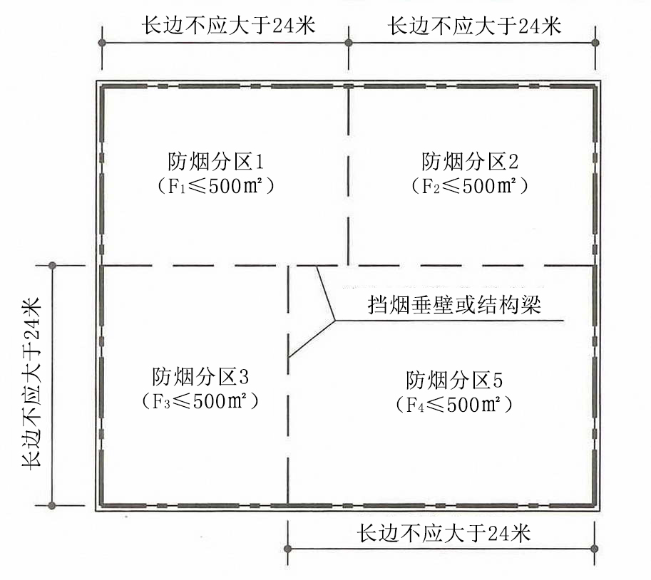
       3、每个防烟分区的面积不易大于500㎡,对有自动灭火设备的建筑物,防烟区可扩大一倍。

       设置防烟分区时,如果面积过大,会使烟气波及面积扩大,增加受灾面,不利于安全疏散和扑救;如果面积过小,不仅影响使用,还会提高工程造价。在划分防烟分区时,不妨注意以下几点吧:

       (1).凡需要设置排烟设施的走到、房间(不包括净空高度超过6米的房间)应采用挡烟垂壁、隔墙或从顶棚下突出50厘米的梁划分防烟分区。

       (2).走道按规定需要设排烟设施,而房间(包括地下室)不设,且房间与走道相通的门为防火门时,可只按走道面积划分防烟分区;如房间与走道相通的门不是防火门时,防烟分区面积的划分包括房间的面积。

       (3).房间(包括地下室)按规定设排烟设施而走道不设,并且房间与走道相通的是防火门时,可只按房间的面积划分防烟分区;如房间与走道相通的门不是防火门时,则防烟分区面积的划分应包括走道的面积。

       (4).走道和房间(包括地下室)按规定均设排烟设施时,可根据具体情况分设或合设排烟设施,按分设或合设排烟设施的情况划分防烟分区。

       (5).当建筑面积较大时,可将每个防烟分区划分成几个排烟系统,并将竖风道分散布置在相应防烟分区之内,以便尽量缩短水平风道,这样不仅排烟效果好而且更为经济。

       防烟分区仅能有效的控制火灾产生的烟气流动并不能防止火灾的扩大,这一点要谨记!好了,关于防烟分区划分原则就讲解到这里了,想了解更多消防知识敬请关注合景消防,合景消防是东莞本土优秀的消防工程安装公司,具有多年消防工程安装经验和消防设施工程专业承包贰级资质以及安全生产许可证,公司可承接厂房、酒店、写字楼等各类公共场所的消防安装工程以及机电安装和装修装饰服务,公司已服务上百家企业客户,口碑良好,联系电话:400-602-0222/18665110000

上一篇:防火墙、防火隔墙及防爆墙在建筑消防中的运用

下一篇:消防联动控制系统有什么作用和意义?