合景装饰20年大品牌,精耕办公装修市场,提供规划设计、采购、施工等一站式服务,得到客户“高回头率 高满意度”的肯定,曾获得CCTV2颁发的“优秀设计团队”奖
Wed May 18 17:46:16 CST 2022
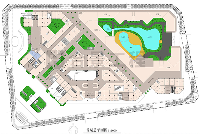
合景装饰合作单位淮南南天门CBD规划采用混搭风格,注重和谐统一,讲求形散而神不散。它摆脱沉闷,突出重点,符合了当今人们追求个性、随意的生活态度。混搭设计的重点是要形成统一的风格,细致到每一个角落,包括一个装饰品的运用都要独具匠心,这包括对成熟装饰风格的借鉴,也包括对家居装饰的准确理解,这是一个提高与升华的过程。





OTHER