合景装饰20年大品牌,精耕办公装修市场,提供规划设计、采购、施工等一站式服务,得到客户“高回头率 高满意度”的肯定,曾获得CCTV2颁发的“优秀设计团队”奖
Mon Jul 15 14:23:13 CST 2019
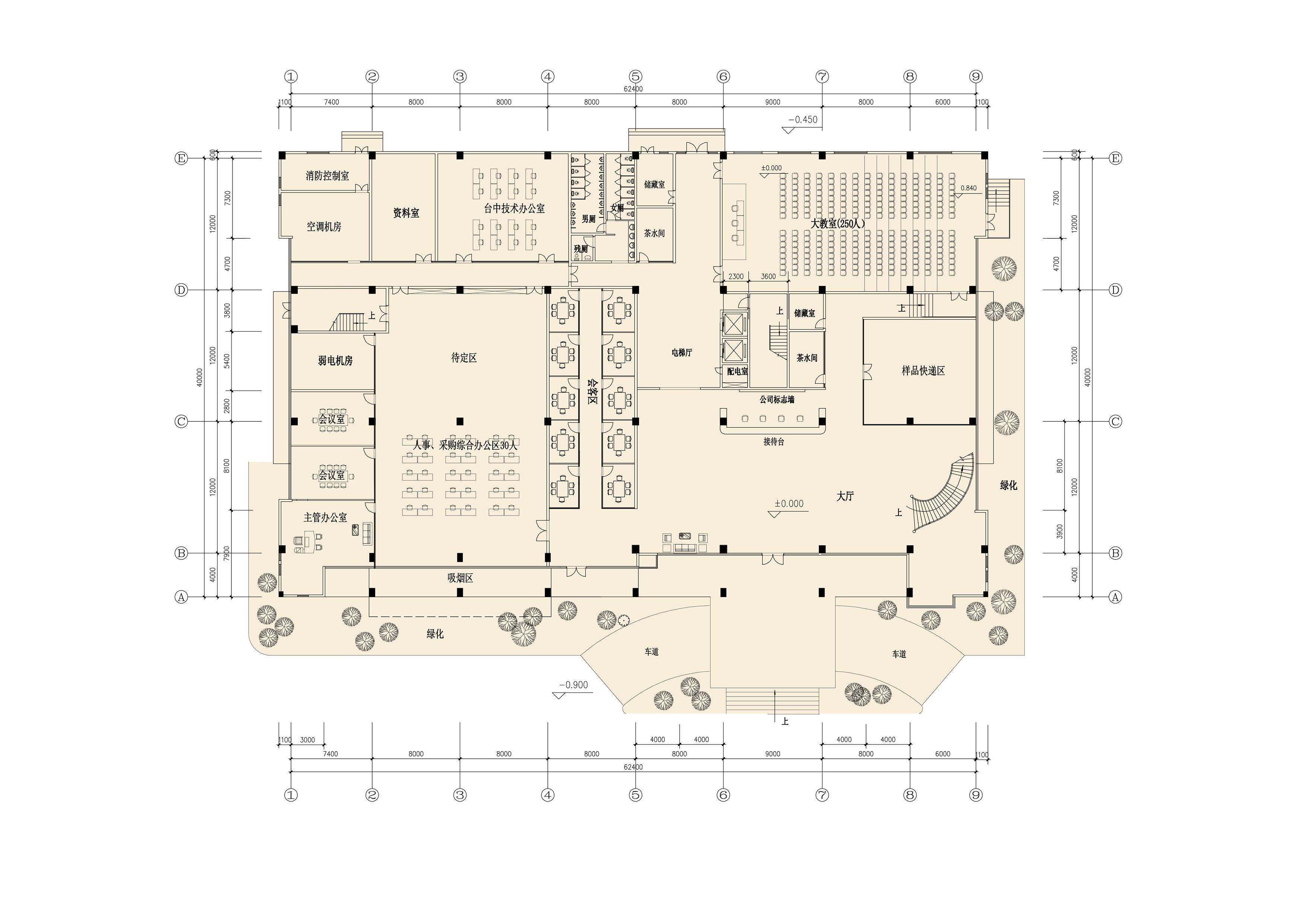
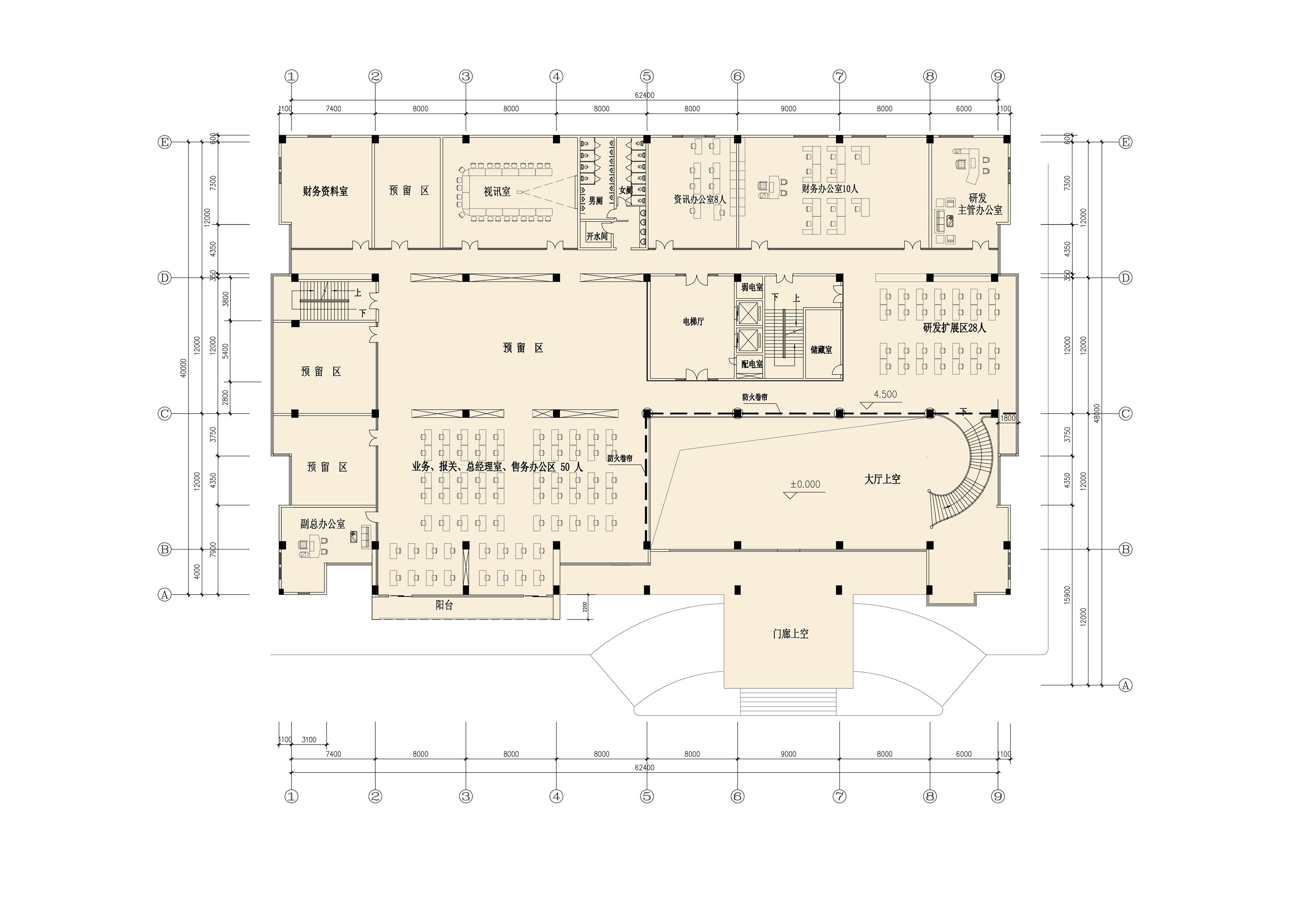
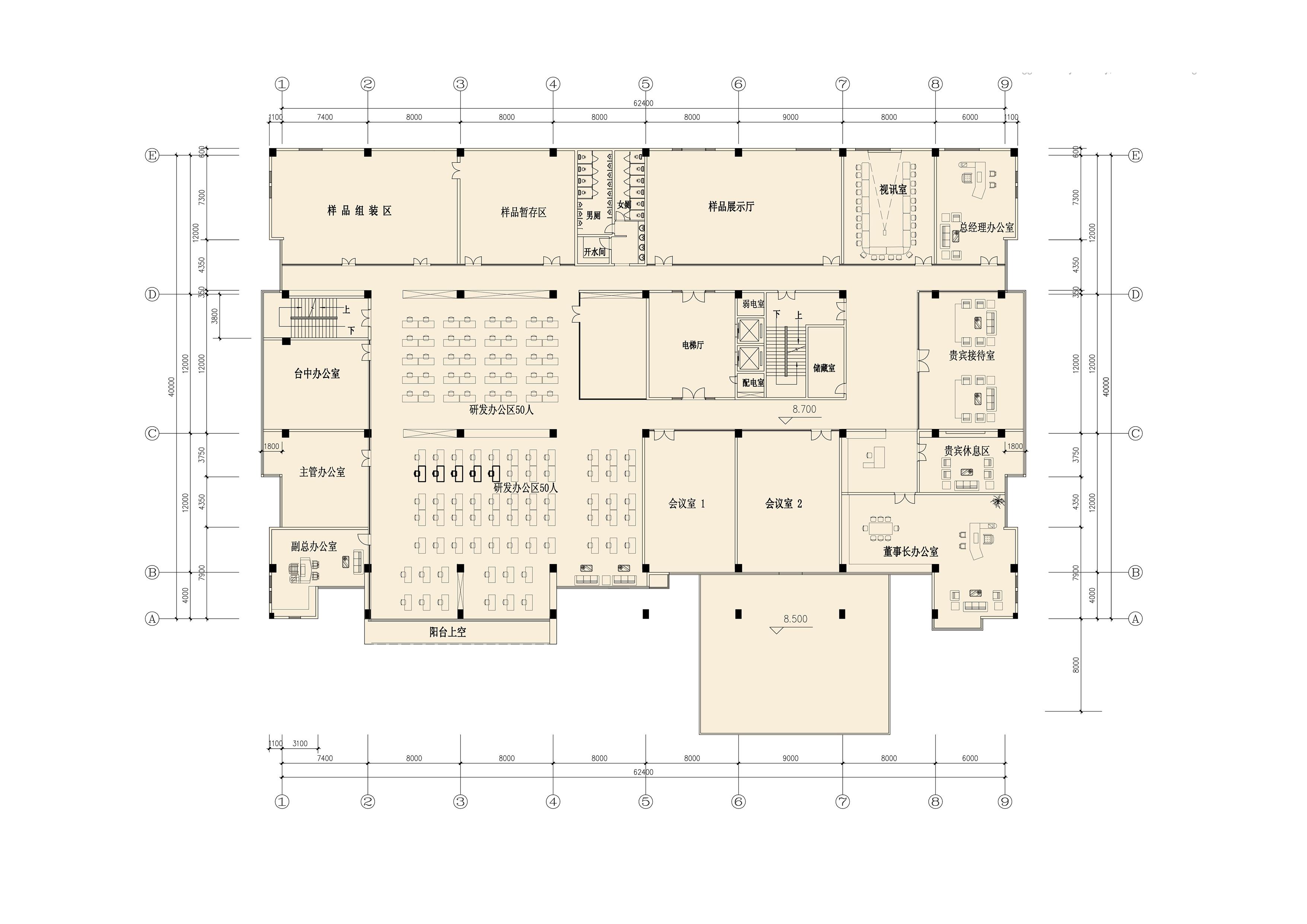
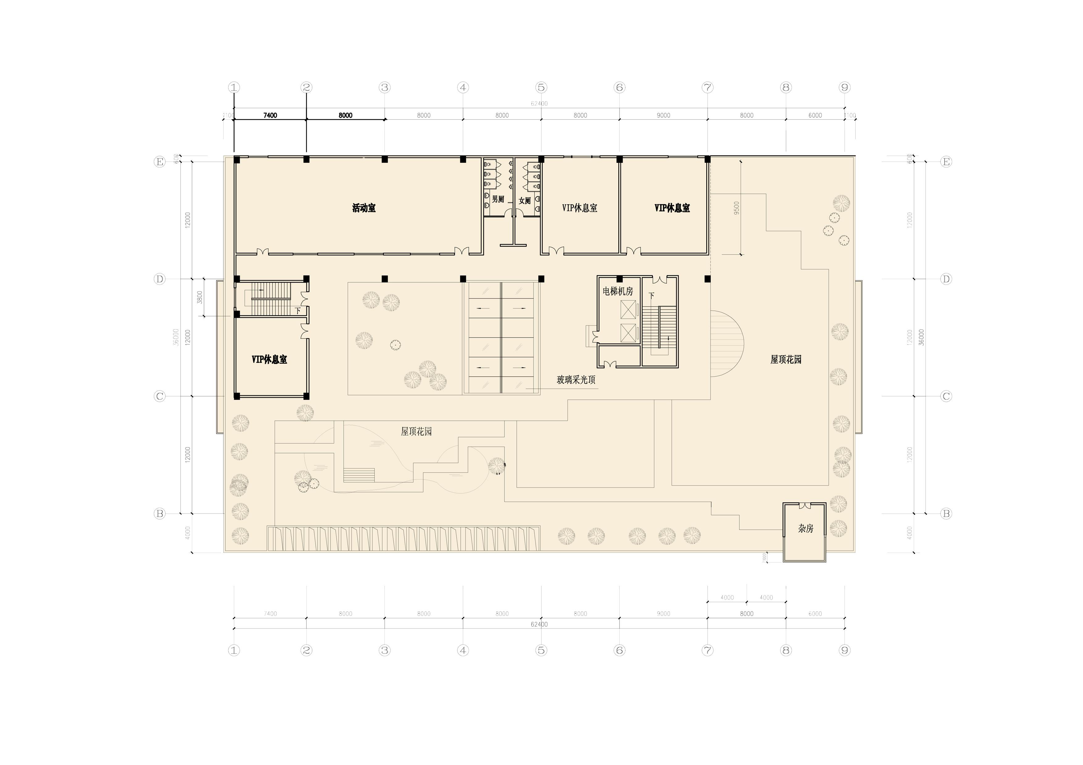
合景装饰合作单位东莞美尔顿车业有限公司是一家国际化集团企业,主要生产滑板车、电动车、健身及运动器材等系列出口产品。

















OTHER